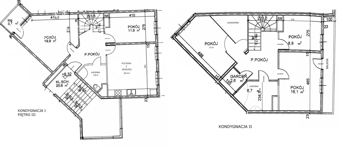
Na sprzedaż dwupoziomowe, 5 pokojowe mieszkanie o powierzchni 131,2m2 znajdujące się na trzecim i czwartym piętrze w budynku przy ul. Kamińskiego 20.
MIESZKANIE
Mieszkanie ma bardzo duży potencjał.
Na pierwszym poziomie znajduje się salon 19,9m2 z wyjściem na balkon- widok na patio z drzewami, ekspozycja zachodnia.
Kuchnia z jadalnią stanowi centralną przestrzeń i ma 20,4m2, ekspozycja wschodnia.
Jest tu duży stół z krzesłami - idealne miejsce na rodzinne posiłki oraz meble kuchenne w zabudowie robione pod wymiar wraz z całym niezbędnym sprzętem AGD. Dodatkowo spora ilość blatów roboczych sprawia, że przestrzeń ta jest niezwykle funkcjonalna.
Kolejne pomieszczenie na tym poziomie to gabinet 11,6m2.
Całości dopełnia łazienka z umywalką, wc i kabiną prysznicową oraz hol z szafą.
Wchodząc na górę zastaniemy prywatną przestrzeń, na którą się składają trzy sypialnie o powierzchni kolejno 16,1m2 i 13m2 oraz 8,8m2. Z jednej z nich wychodzimy na loggię z widokiem na osiedle.
Dodatkowo są to dwie garderoby oraz łazienka z wanną, wc, umywalką oraz miejscem na pralkę i suszarkę.
Ogromnym atutem mieszkania jest to, że nikt nie zagląda nam w okna, widok na zieleń i zamontowane moskitiery.
Mieszkanie nadaje się do wprowadzenia i będzie idealnym miejscem dla nowej rodziny.
BUDYNEK I OSIEDLE
Budynek z 1996 roku, bez windy, po remoncie balkonów oraz ociepleniu i malowaniu elewacji.
Osiedle zamknięte, chronione i bezpieczne.
Z dużą ilością zieleni oraz placami zabaw dla młodszych i starszych dzieci.
Na terenie osiedla miejsca postojowe dla mieszkańców.
Przy osiedlu dużo ogólnodostępnych miejsc postojowych dla gości.
OKOLICA
Bliski Tarchomin!
Świetna lokalizacja, blisko przystanku autobusowego i tramwajowego.
Szybki dojazd do Metra Młociny.
Bardzo dobra komunikacja Autobus: 518 509 526 133 152 186 , Tramwaj: 2 i 17
W okolicy szkoły, żłobki i przedszkola.
Po drugiej stronie ulicy bazarek, delikatesy, pawilony Handlowe, apteka całodobowa, cukiernia.
Blisko do Galerii Północnej.
INFORMACJE DODATKOWE
Pełna własność z KW- możliwość zakupu na kredyt.
Do mieszkania przynależy piwnica o powierzchni ok 14,9m2
Czynsz 1746zł.
Zapraszam serdecznie na prezentację
5 pokoi, dwupoziomowe, do wejścia, Kamińskiego - Sprzedane
lokalizacja: Warszawa, Aleksandra Kamińskiego
1 300 000,00 PLN
10 260,46 PLN
Dane szczegółowe
- Typ transakcji: sprzedaż
- Typ nieruchomości: Mieszkanie
- Lokalizacja: Warszawa Białołęka Tarchomin, Aleksandra Kamińskiego
- Powierzchnia:126,70 m2
- Liczba pokoi: 5
- Piętro: 3 z 4
- Numer oferty: 519467
- Cena: 1 300 000,00 PLN
- Cena za m2: 10 260,46 PLN
Opis nieruchomości
Kontakt do opiekuna:
Proper Partners Sp. z o.o.