Przedstawiam Państwu rozkładowe 3-pokojowe mieszkanie z oddzielna kuchnią, o powierzchni 63,05 m2, znajdujące się na 8 piętrze 10-piętrowego budynku z 1977 roku budowy, przy ul. Bogusławskiego, 20.
W bloku zamontowana została nowoczesna winda.
Do tego mieszkania przynależy przedsionek o powierzchni 12 m2, który obecnie służy jako komórka lokatorska / garderoba. Istnieje możliwość prawnego dołączenia tego przedsionka do użytkowej powierzchni mieszkania. Nabywcą dostanie pełną instrukcję, dotyczącą tego procesu.
Mieszkanie jest w stanie - do remontu.
Na osiedlu znajduje się plac zabaw, skwer kwiatowy, boisko do koszykówki.
Z okna mieszkania widać górkę, z której w zimę dzieci zjeżdżają na sankach.
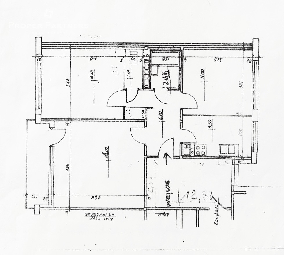
Mieszkanie składa się z:
- salonu (21 m2);
- sypialni (14,45 m2);
- pokoju dla dziecka / dla gości (11 m2);
- kuchni (6,5 m2);
- łazienki z wanną (2,95 m2);
- WC (1,6 m2);
- przedpokoju (6,2 m2);
- przedsionka (12 m2).
Do mieszkania przynależy piwnica.
Mieszkanie jest rozkładowe.
Z salonu mamy wyjście na balkon - loggię.
Układ mieszkania idealnie się nadaje na wynajem na pokoje - najem długo- i krótkoterminowy AirBNB.
Stan prawny: Spółdzielcze własnościowe prawo do lokalu, z możliwością założenia KW (właściciel - małżeństwo).
Oplaty administracyjne: 1.100 zł.
LOKALIZACJA:
5 min pieszo do sklepu "Carrefour Express".
5 min pieszo do siłowni Active Zone.
4 min pieszo do Przedszkola nr 340 "Kasztanowego Ludka".
6 min pieszo do paczkomatu InPost.
5 min pieszo do apteki "Słoneczna".
KOMUNIKACJA:
7 min pieszo do przystanku autobusowego linii 114, 116, 121, 203, 409, N02, N43.
9 min pieszo do przystanku tramwajowego linii 10, 16, 19, 22, 23, 26, 28, 33
13 min komunikacją miejską do stacji metro "Młociny".
Zapraszam na prezentację.
Lena Gorzycka
696-666-984
3 pokoje (63 m2 + 12 m2), ul. Bogusławskiego, 20
lokalizacja: Warszawa, Wojciecha Bogusławskiego
820 000,00 PLN
13 005,55 PLN
Dane szczegółowe
- Typ transakcji: sprzedaż
- Typ nieruchomości: Mieszkanie
- Lokalizacja: Warszawa Bielany, Wojciecha Bogusławskiego
- Powierzchnia:63,05 m2
- Liczba pokoi: 3
- Rok budowy: 1977
- Piętro: 8 z 10
- Numer oferty: 932439
- Cena: 820 000,00 PLN
- Cena za m2: 13 005,55 PLN
Opis nieruchomości
Wirtualny spacer po nieruchomości
Kontakt do opiekuna:
Proper Partners Sp. z o.o.