Klimatyczne, wysokie 2pok. w kamienicy - Sprzedane

lokalizacja: Warszawa, Chełmska

600 000,00 PLN

12 998,27 PLN

Opis nieruchomości

Rezerwacja.
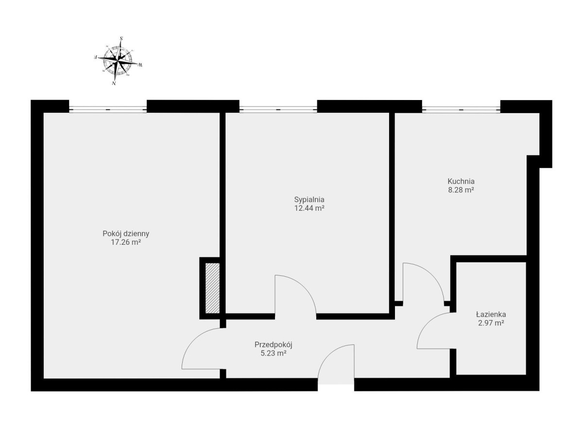
Wysokie, jasne 2 pokoje w kamienicy na Mokotowie | 46 m² • południe • oddzielna kuchnia • 2 piwnice.

Na sprzedaż funkcjonalne i wyjątkowo jasne mieszkanie o powierzchni 46,16 m², położone na 2. piętrze w kamienicy z 1954 roku przy ul. Chełmskiej - w sercu zielonych Sielc, jednej z najbardziej pożądanych części Mokotowa.

Mieszkanie wyróżnia wysokość pomieszczeń 2,79 m, pełna ekspozycja południowa oraz bardzo dobry, ponadczasowy układ, dający wiele możliwości aranżacyjnych. To idealna propozycja dla osób szukających mieszkania z klimatem, światłem i potencjałem.

Najważniejsze atuty:


  • wysokie sufity (2,79 m) - przestrzeń i klimat kamienicy,

  • ekspozycja południowa - mieszkanie jest jasne przez cały dzień,

  • oddzielna kuchnia - duża i ustawna, z oknem,

  • dwa niezależne pokoje - idealne dla pary, singla, małej rodziny lub pod wynajem,

  • 2 piwnice - wyjątkowa, praktyczna wartość dodana, jedna prawie 9m².

  • wymieniona instalacja elektryczna (2011) i piony wod.-kan. (2013),

  • grube mury - dobra izolacja termiczna,

  • duży potencjał modernizacyjny - możliwość stworzenia własnej aranżacji.



Układ pomieszczeń:


  • salon - jasny, ustawny, z dużym oknem,

  • sypialnia - spokojna, z pojemną zabudową,

  • oddzielna kuchnia - funkcjonalna, z możliwością nowoczesnej aranżacji,

  • łazienka z wanną,

  • przedpokój z miejscem na szafy.



Układ pozwala m.in. na stworzenie salonu z aneksem i dużej sypialni, pozostawienie dwóch niezależnych pokoi lub aranżację komfortowego home office.

Mieszkanie jest w pełni funkcjonalne i zadbane, natomiast część pomieszczeń można z czasem zmodernizować według własnego projektu, dostosowując je do swojego stylu.
To mieszkanie to świetna baza do własnej aranżacji.

Budynek i wspólnota:
- kamienica z lat 50-tych z prężnie działającą wspólnotą.
- wymienione piony wod.-kan.,
- w trakcie wymiany instalacji elektrycznej w częściach wspólnych,
- po zakończeniu prac - planowany remont klatek schodowych.

To inwestycje, które zwiększą komfort i wartość nieruchomości.
Czynsz podany w ogłoszeniu jest dla 4 osób.

Lokalizacja - Sielce:

- zielone, kameralne, świetnie skomunikowane
- w bliskiej okolicy znajdują się aż trzy duże parki:
- Park Promenada i Morskie Oko - duże tereny spacerowe, stawy, zieleń,
- Łazienki Królewskie - jeden z najpiękniejszych parków Mokotowa 
- Park Sielecki - tuż obok, idealny na krótkie spacery.

Dodatkowo:
- Pałac Szustra - siedziba Towarzystwa Muzycznego z koncertami, warsztatami i wydarzeniami dla mieszkańców,
- liczne restauracje, kawiarnie, sklepy osiedlowe i sieciowe, punkty usługowe, szkoły i przedszkola.
- komunikacja - jeden z największych plusów tej lokalizacji.

To idealne miejsce dla osób, które chcą być dobrze skomunikowane w cztery strony miasta:
tramwaj do Centrum i Żoliborza, autobusy na Krakowskie Przedmieście / Uniwersytet, linie łączące z Gocławiem, Mostem Siekierkowskim, Ochotą, Ursynowem i Wilanowem.
Szybki dojazd do centrum - ok. 12 min samochodem, wyjazd na Dolinę Służewiecką i Trasę Siekierkowską.

Dlaczego warto?
To mieszkanie to połączenie atutów, których dziś praktycznie nie da się znaleźć w nowym budownictwie: wysokość, światło, klimat kamienicy (solidne mury), funkcjonalny układ i duża przestrzeń do przechowywania. 
Do tego świetna komunikacja i bliskość pięknych mokotowskich parków sprawiają, że to miejsce ma ogromny potencjał — do zamieszkania lub jako inwestycja


Zapraszam do kontaktu i obejrzenia mieszkania na żywo - to doskonała propozycja dla osób ceniących świetną lokalizację, wygodny układ i duży potencjał aranżacyjny.

Aspekt prawny:
Odrębna własność z Księgą Wieczystą, co umożliwia posiłkowanie się kredytem hipotecznym. Stan prawny gruntów uregulowany.
Bezpłatna konsultacja z niezależnym ekspertem kredytowym - sprawdzenie zdolności kredytowej, dostępność ofert ze wszystkich banków.

Jestem wyłącznym agentem tej nieruchomości.
Serdecznie zapraszam na prezentację oraz do kontaktu telefonicznego.
Jestem do Państwa dyspozycji 7 dni w tygodniu w godzinach 9 - 21.
Ekspert ds. Nieruchomości
ANNA DĄBROWSKA
Tel: 698 163 790
Proper Partners

JEŻELI TWÓJ ZAKUP WIĄŻE SIĘ ZE SPRZEDAŻĄ INNEJ NIERUCHOMOŚCI DAJ ZNAĆ, CHĘTNIE PRZEPROWADZĘ CIĘ PRZEZ TEN PROCES.
Ogłoszenie nie stanowi oferty w rozumieniu przepisów kodeksu cywilnego.

Plan Nieruchomości

Kontakt do opiekuna:

Proper Partners Sp. z o.o.

Anna Dąbrowska
Mapa

Strona korzysta z plików cookie w celu realizacji usług zgodnie z Polityką prywatności. Możesz określić warunki przechowywania lub dostępu do cookie w Twojej przeglądarce.