Rozkładowe, klimatyczne 2 pokoje w kamienicy na Mokotowie. Wysokość ponad 2,80m! Idealne pod inwestycję!
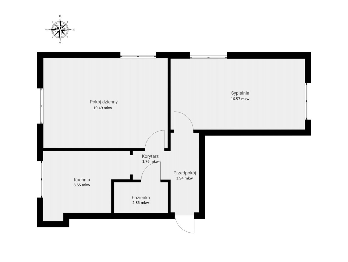
Mam przyjemność zaprezentować Państwu 2-pokojowe mieszkanie o powierzchni ponad 53 m², położone przy ul. Chełmskiej - w jednej z najbardziej pożądanych lokalizacji warszawskiego Mokotowa.
Lokal znajduje się na 1 piętrze w kamienicy z 1954 roku z ekspozycją okien na na trzy strony: południe, zachód i północ. Jednym z kluczowych atutów jest niestandardowa wysokość pomieszczeń - ponad 2,80m, która nadaje wnętrzom przestrzeni, lekkości i dużo możliwości aranżacyjnych, również w stylu loftowym.
Układ pomieszczeń:
- jasny, przestronny salon z miejscem na jadalnię
- wygodna, duża sypialnia z oknami na dwie strony
- oddzielna, ustawna kuchnia - idealna do własnej aranżacji
- łazienka z prysznicem
- funkcjonalny przedpokój
Atuty nieruchomości:
- wysokie sufity - 2,80 m
- pod panelami położony jest parkiet
- duża piwnica - dodatkowa przestrzeń na przechowywania
- mieszkanie po częściowej wymianie instalacji elektrycznej
- świetna lokalizacja - tuż obok nowa linia tramwajowa
Idealne zarówno do zamieszkania, jak również jako inwestycja pod wynajem.
Część zdjęć przedstawia wizualizację.
W bezpośrednim sąsiedztwie znajdują się liczne sklepy, punkty usługowe, restauracje, szkoły, przedszkola oraz tereny zielone: Park Sielecki, Promenada, Morskie Oko czy pobliskie Łazienki Królewskie.
Doskonała komunikacja:
- przystanek tramwajowy - ok. 100 m
- przystanek autobusowy - ok. 200 m
- Park Sielecki - 300 m
- Park Promenada - 400 m
- Park Morskie Oko - 800 m
- Łazienki Królewskie - 750 m
- Sadyba Best Mall - ok. 2,5 km
- wodny park Warszawianka - ok. 1,5 km
Szybki dojazd do centrum- ok 12 min samochodem i ok 18 min na Lotnisko Chopina
Bliskość Dolinki Służewieckiej zapewnia wygodny wyjazd w różne części miasta jak i poza jego granice.
Zapraszam do kontaktu i obejrzenia mieszkania na żywo - to doskonała propozycja dla osób ceniących świetną lokalizację, wygodny układ i duży potencjał aranżacyjny.
Aspekt prawny:
Odrębna własność z Księgą Wieczystą, co umożliwia posiłkowanie się kredytem hipotecznym. Stan prawny gruntów uregulowany.
Bezpłatna konsultacja z niezależnym ekspertem kredytowym - sprawdzenie zdolności kredytowej, dostępność ofert ze wszystkich banków.
Jestem wyłącznym agentem tej nieruchomości.
Serdecznie zapraszam na prezentację oraz do kontaktu telefonicznego.
Jestem do Państwa dyspozycji 7 dni w tygodniu w godzinach 9 - 21.
Ekspert ds. Nieruchomości
ANNA DĄBROWSKA
Tel: 698 163 790
Proper Partners
JEŻELI TWÓJ ZAKUP WIĄŻE SIĘ ZE SPRZEDAŻĄ INNEJ NIERUCHOMOŚCI DAJ ZNAĆ, CHĘTNIE PRZEPROWADZĘ CIĘ PRZEZ TEN PROCES.
Ogłoszenie nie stanowi oferty w rozumieniu przepisów kodeksu cywilnego.
Trójstronne, wysokie (2,8m) w kamienicy! Okazja!
lokalizacja: Warszawa, Chełmska
779 000,00 PLN
14 653,88 PLN
Dane szczegółowe
- Typ transakcji: sprzedaż
- Typ nieruchomości: Mieszkanie
- Lokalizacja: Warszawa Mokotów, Chełmska
- Powierzchnia:53,16 m2
- Liczba pokoi: 2
- Rok budowy: 1954
- Piętro: 1 z 4
- Numer oferty: 119572
- Cena: 779 000,00 PLN
- Cena za m2: 14 653,88 PLN
Opis nieruchomości
Kontakt do opiekuna:
Proper Partners Sp. z o.o.