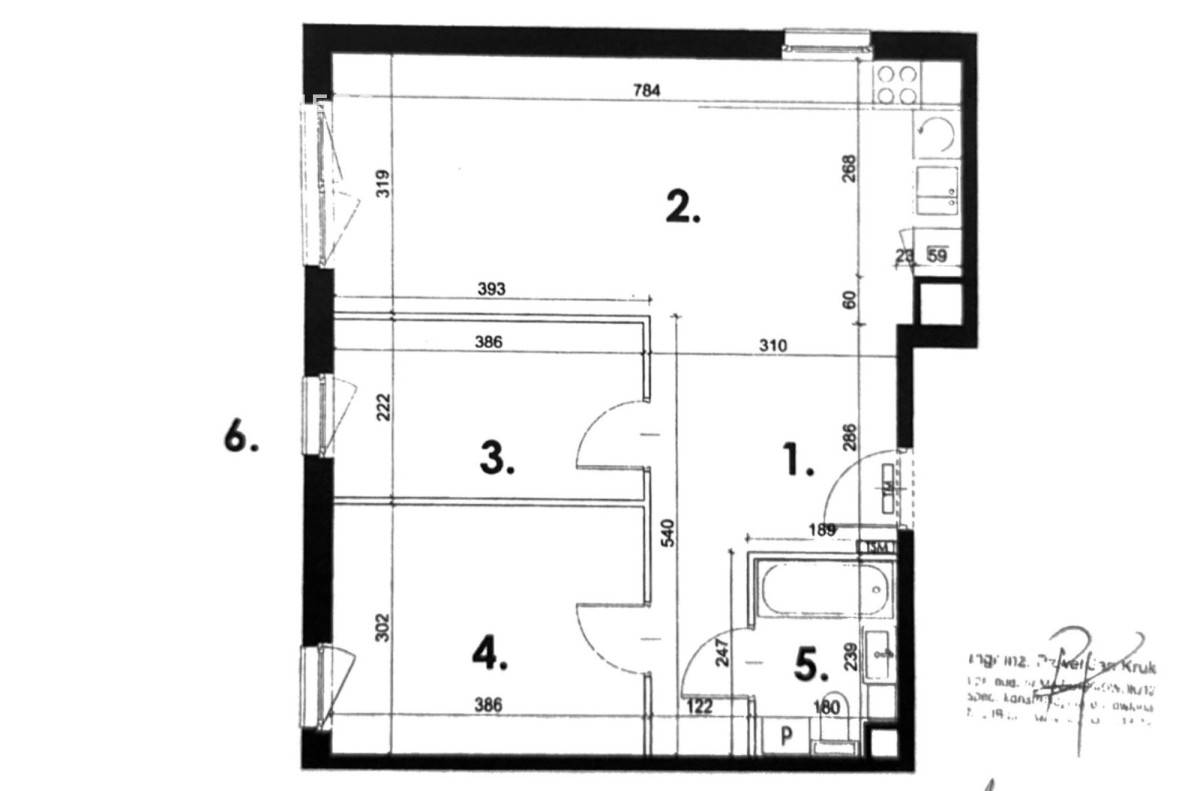
Przedstawiam Państwu 3-pokojowe mieszkanie o powierzchni 61,23 m2 do najmu, znajdujące się na parterze 3-piętrowego bloku z 2021 roku przy ul. Polki, 3A na osiedlu "POLONEZA".
Mieszkanie składa się z:
- salonu z aneksem kuchennym (25 m2);
- gabinetu (8,57 m2);
- sypialni (11,66 m2);
- łazienki z wanną (4,12 m2);
- holu (11,88 m2).
WYPOSAŻENIE:
Mieszkanie jest nowocześnie umeblowane i wyposażone we wszystkie niezbędne sprzęty RTV i AGD oraz nowe naczynia i sztućce.
Przylegający do mieszkania ogródek ma 56,43 m2.
Do mieszkania przynależy miejsce postojowe w garażu podziemnym (w cenie czynszu).
LOKALIZACJA:
4 minuty pieszo do sklepu "Stokrotka",
7 minut samochodem do sklepu "Auchan",
15 minut pieszo do przedszkola i żłobka,
5 minut pieszo do Poloneza Clinic,
18 minut pieszo do toru "Służewiec".
10 minut pieszo do Jeziórka Grabowskiego.
KOMUNIKACJA:
18 minut autobusem do stacji metra "Imielin",
10 minut pieszo do przystanku autobusowego linii 148, 331, N86.
4 minuty samochodem do ulicy Puławska.
Czynsz: 4.700 zł.
Opłaty administracyjne: 600 zł. (z zaliczkami na wodę i ogrzewanie).
Kaucja: 5.300 zł.
Prąd oraz abonament za Internet najemca pokrywa dodatkowo.
Minimalny okres podpisania umowy: 12 miesięcy.
Konieczne jest podpisanie umowy najmu okazjonalnego.
Zapraszam na prezentację.
3 pokoje na wynajem, ul. Polki, 3A (61 m2) - Wynajęte
lokalizacja: Warszawa, Polki
4 700,00 PLN
76,76 PLN
Dane szczegółowe
- Typ transakcji: wynajem
- Typ nieruchomości: Mieszkanie
- Lokalizacja: Warszawa Ursynów, Polki
- Powierzchnia:61,23 m2
- Liczba pokoi: 3
- Rok budowy: 2021
- Piętro: 0 z 4
- Numer oferty: 533453
- Cena: 4 700,00 PLN
- Cena za m2: 76,76 PLN
Opis nieruchomości
Adres strony www: https:// NULL
Kontakt do opiekuna:
Proper Partners Sp. z o.o.